Home
Video's
Resume
Contact
Home
Video's
Resume
Contact
Lucas Kaufmann's portfolio

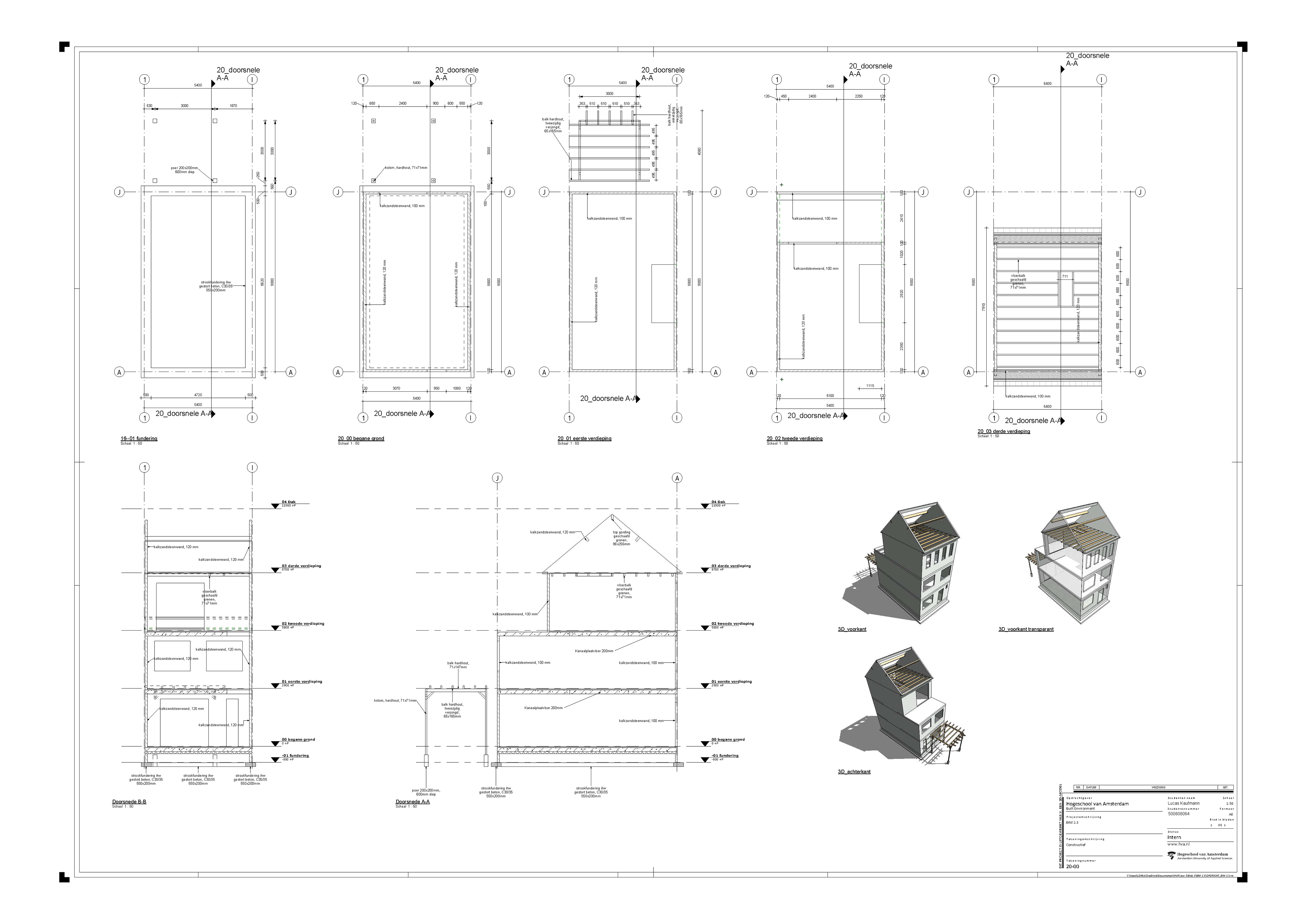
BIM Modelleren Rijtjeswoning Jaar 1

Klik op de tekeningen voor het 3D model!

You may also like

Architectuur en Constructie jaar 1
2018
Omgevingsvergunning Jaar 2
2019
Projectontwikkeling Jaar 2
2019
Installatie en afbouw Jaar 2
2019
Uitvoeringstechnologie Jaar 2
2019
Project management jaar 1
2019
Vastgoed Jaar 2
2019
Architectonische techniek jaar 1
2018
Stedenbouw jaar 1
2019
Circulair Bouwen Jaar 2
2020
↑Back to Top
Powered by Adobe Portfolio